2.下準備

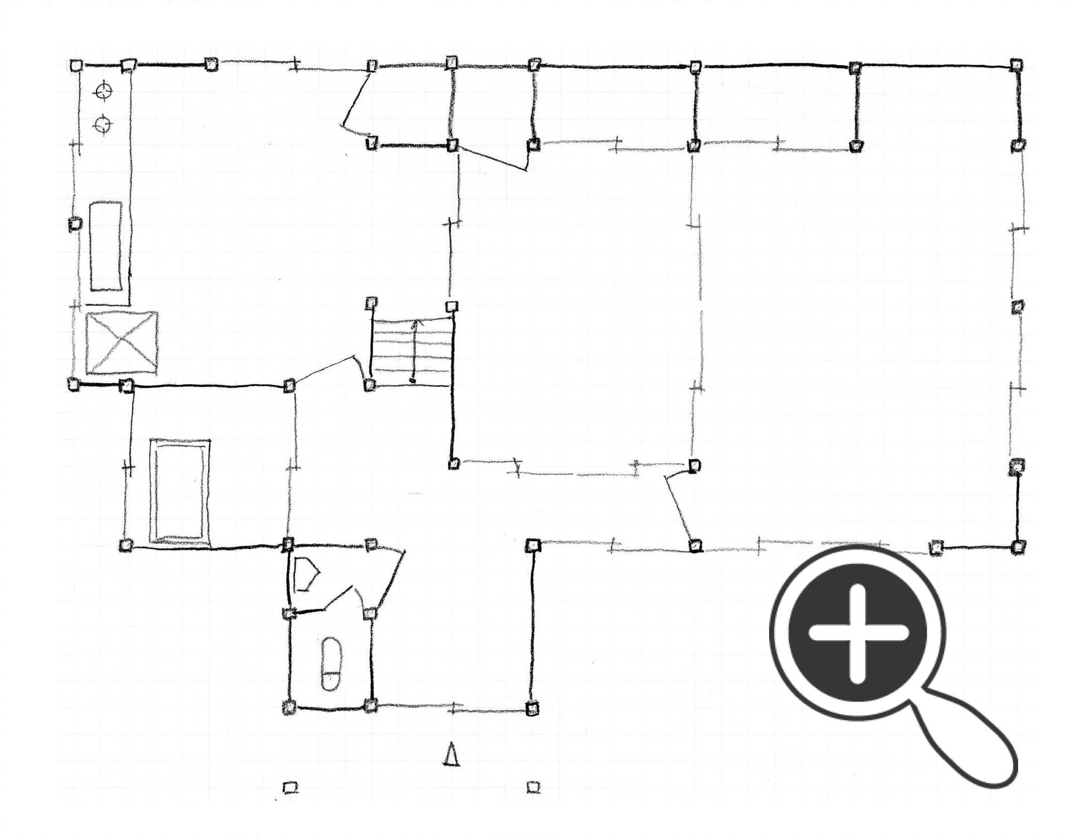
1) 平面図の作成

  1. 自宅の見取り図を作成します。右図を参考に、方眼紙に1階と2階の平面図を描いてください。なお設計図がある方は、そのコピーを使ってください。

2) 屋根の図面の作成

  1. 下図のように、屋根を真上から見た図面を作成してください。

    屋根の図面の作成

3) 下げ降りの作成

  1. 120cmの長さのひもにおもりをつるして、建物の傾きを測る道具を下げ振りといいます。右図を参考に作成してください。


1.材料
3.被害の調査
戻る 戻る