2.下準備

1) 平面図の作成


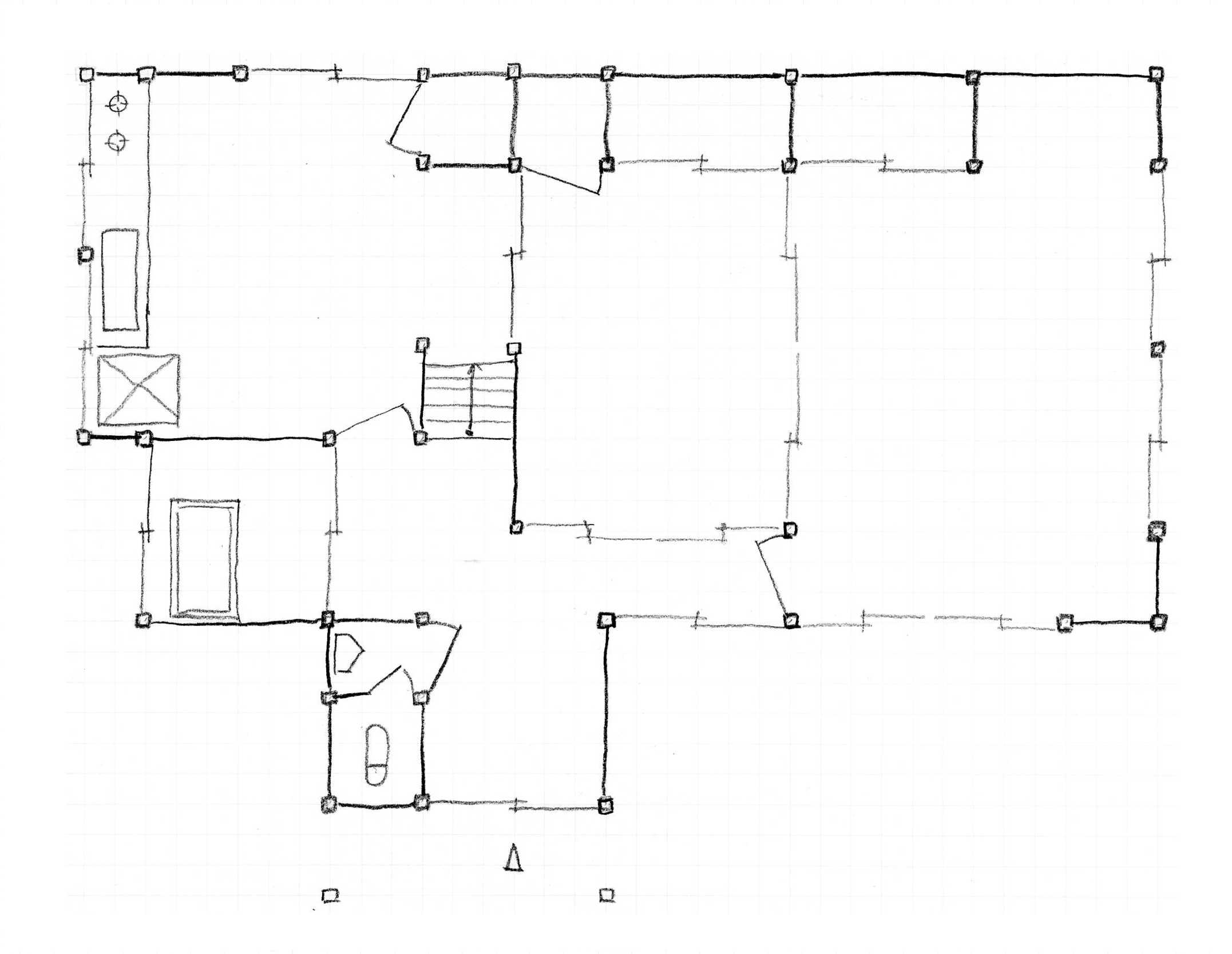
図面の書き方

自宅の見取り図を作成します。上図を参考に、方眼紙に1階と2階の平面図を描いてください。縮尺は問いませんが、部屋の形やサイズ(プロポーション)はできるだけ正確に描いてください。この見取り図を基本に被害認定調査を実施しますので、時間をかけてていねいに描いてください。なお設計図がある方は、そのコピーを使ってください。

戻る